
小型垂直螺旋輸送機主要用于垂直或大傾角輸送粉狀、粒狀、非黏性的容重1.3t/m的干燥物料,小型垂直螺旋輸送機輸送量可達20立方/時,輸送高度在15米之間.
全國統一銷售熱線
免費獲取報價
小型垂直螺旋輸送機視頻

小型垂直螺旋輸送機主要用于垂直或大傾角輸送粉狀、粒狀、非黏性的容重≤1.3t/m的干燥物料,采用不銹鋼材質制作而成,輸送過程中原料不會受到污染,不會帶入任何異物,能使生產過程中實現全封閉自動化。
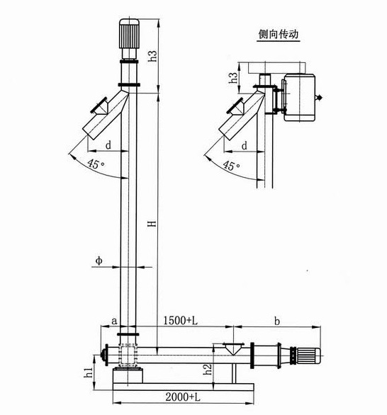
小型垂直螺旋輸送機進料口到出料口之間的距離從2.5米到15米,0.5米為一檔,可根據用戶需要選用。

小型垂直螺旋輸送機是由驅動裝置(電動機、減速器、聯軸節)、螺旋、軸承、料槽、進料口、出料口等幾部分組成。

小型垂直螺旋輸送機在輸送過程中,物料隨著螺旋作高速旋轉,由于離心力的作用,物料在料槽內形成若干同心圓層,物料的最外層緊貼槽壁。當螺旋轉速不高時,物料與螺旋表面的摩擦力大于物料所受到的離心力,物料與螺旋一起做旋轉運動,保持相對靜態;當螺旋轉速較高時,物料所受到的離心力大于物料與螺旋表面的摩擦力.物料向螺旋的外緣移動,對料槽壁產生壓力并同時產生摩擦力.只有當這個摩擦力大于物料與螺旋表面之間的摩擦力以及物料重力的分力之和時,物料將與螺旋表面之間發生滑動并沿反方向的螺旋形軌跡上升,即物料被垂直部分的螺旋推送上升,從而達到垂直上升輸送的目的。

1、垂直或大傾角輸送機,電機安裝在主機頭部,占地面積小,易于維護。
2、輸送量可達20立方/時,輸送高度在15米之間,進料口到出料口之間的距離是2.5米-15米,每0.5米一檔,可根據用戶需要選用。
3、整機體積小、轉速高、確??焖倬鶆蜉斔?。
4、出料端設有清掃裝置,整機噪聲低、適應性強,進出料口位置布置靈活。
5、密封性好、外殼采用無縫鋼管制作,端部采用法蘭互相連接成一體,剛性好。

小型垂直螺旋輸送機適用于垂直或大傾斜角度輸送粉狀、粒狀、非粘性的容重≤1.3t/m3的干燥物料,如糧食,油麩、飼料、化工原料、水泥等。物料溫度一般不能超過80°C,垂直螺旋輸送機不適宜輸送塊狀及粘性的物料。
Copyright ? 2008-2019螺旋輸送機廠家-新鄉市大漢振動機械有限公司 All Rights Reserved 版權所有
網站備案號:豫ICP備09002479號-47

